PROPERTY FOR SALE
   
 Listing No.: 11404
  Location : SIENA TWO
  Village Name : SIENA TWO
  Description : Lowrise with Lift , amazing interior conversion with a loft bedroom and an enhanced Ensuite, upgraded open kitchen, Nice sea view, Close to international school, close to bus route and DB north plaza.
  Gross Area (s.f.) : 565
  Asking Price (HK$) : 4,880,000
  Price/s.f. (gross) : 8,637 
  Bed Room(s) : 2
  Bath Room(s) : 1
  Maid's room : 0
  Outdoor Space : ---
  View : Seaview
  Phase : Phase 12
  Property Type : Low-Rise  
  Yr. Of Completion : 2002
  Saleable Area (s.m.) : 41.1 
  Saleable Area (s.f.) : 442 
  Efficiency % : 78 
  Available : By appointment 
  Last date Updated : 2026/02/14
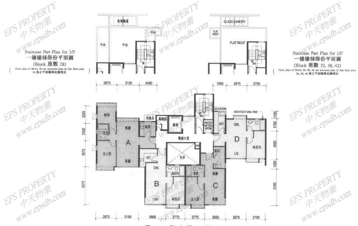
  Floor Plan : floorplan
 
* Photo is for reference only

CONTACT US
 
Your Name
Your Email
Your Phone No.
Your Message